הרימון, רמז, ראשון לציון
מועדפים
הערות
הדפס
שיתוף
עריכה
מודעה מתיווך
לכל 3 תמונות
דירה למכירה
3,100,000 ₪24,603 ₪ למ״ר
5
חדרים
4
קומה
126
מ״ר
2
חניות
אופיר נכסים
מודעה מתיווך
אופיר
הרימון
רמז,
ראשון לציון
על הנכס
סוג נכס:
דירהחדרים:
5קומה:
4 מתוך 6חניות:
2מ״ר:
126אמבטיות:
2שירותים:
2מרפסות שמש:
1תוספות:
מיזוגיחידת הוריםמשופצתממ״דעל הבניין
מעליות:
1
תיאור
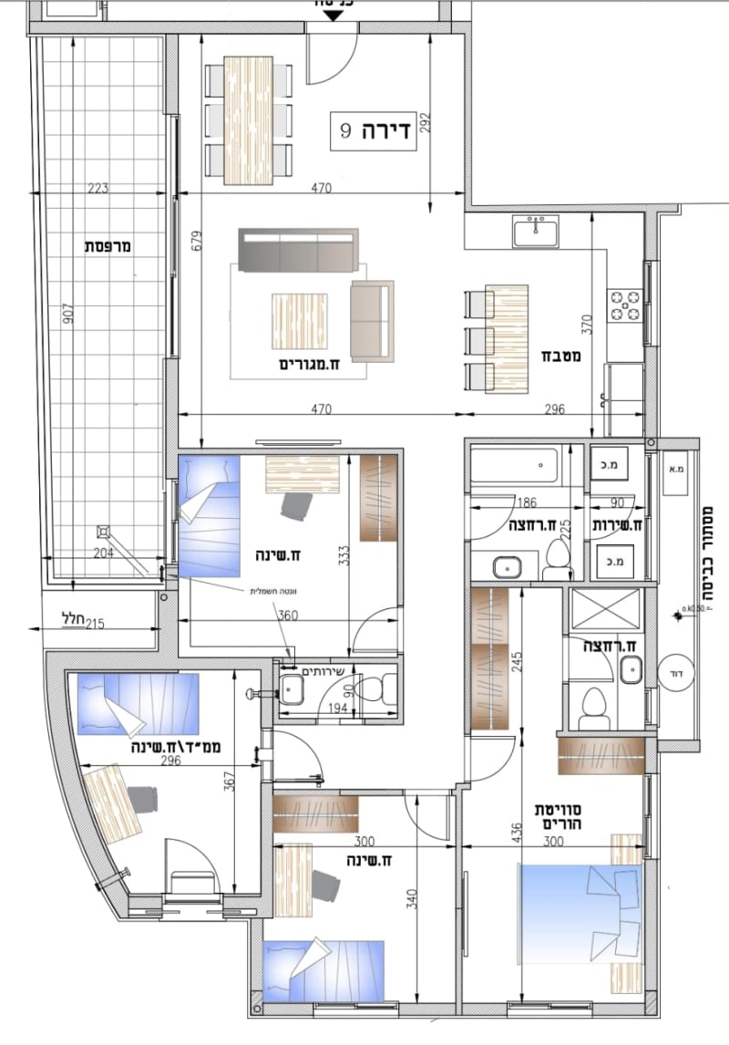
למכירה ללא עמלת תיווך!!! בשכונת רמז המבוקשת ללא עמלת תיווךבפרויקט תמ"א במיקום מעולה העבודות בעיצומן ברחוב הרימון המבוקש והיוקרתי דירה 5 חד חדשה ומדהימה 126 מ"ר 3 כיווני אוויר חניה כפולה עוקבת {לא מכפלות} מרפסת שמש כ19 מ"ר קבלן איכותי שבונה ברמה גבוהה ביותר מועד האכלוס כשנתיים. תנאי תשלום נוחים ווצאפ 050-8499444
למידע נוסף על הנכס
נכסים של בעל הנכס
נכס דומה
מחשבון משכנתא
פתח את המחשבון
מחיר הדירה
הון עצמי
%
תקופה בשנים
משכנתא
₪החזר חודשי מייצג
₪תאריך פרסום: 11/11/2024 (עדכון: 28/12/2025)
מידע נוסף אודות דירה בהרימון ראשון לציון
דירה למכירה 5 חדרים בהרימון ראשון לציון בעלת שטח 126, מרפסות שמש: 1, שירותים: 2, אמבטיות: 2, חניות: 2, קומה: 4, מעליות: 1, כיווני אוויר: , תוספות:: מיזוג, יחידת הורים, משופצת, ממ״ד, .
דירה למכירה 5 חדרים בהרימון ראשון לציון בעלת שטח 126, מרפסות שמש: 1, שירותים: 2, אמבטיות: 2, חניות: 2, קומה: 4, מעליות: 1, כיווני אוויר: , תוספות:: מיזוג, יחידת הורים, משופצת, ממ״ד, .

