רמת הגולן 29, קרית שרת מזרח, חולון
מועדפים
הערות
הדפס
שיתוף
עריכה
מודעה מפרטי
לכל 20 תמונות
מיני פנטהאוז למכירה
4,480,000 ₪20,837 ₪ למ״ר
6
חדרים
5
קומה
215
מ״ר
1
חניות
אודי
מודעה מפרטי
רמת הגולן 29
קרית שרת מזרח,
חולון
על הנכס
סוג נכס:
מיני פנטהאוזחדרים:
6קומה:
5 מתוך 6חניות:
1כיווני אוויר:
צפון, דרום, מערבמ״ר:
215אמבטיות:
2שירותים:
3מרפסות שמש:
1תוספות:
מיזוגיחידת הוריםממ״דסורגיםעל הבניין
שנת בניה:
2020
מעליות:
1
תוספות:
חדר עגלות
תיאור
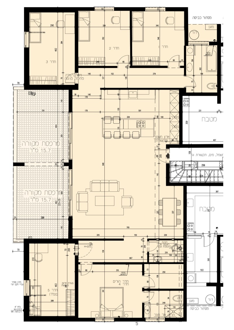
🏡 למכירה – מיני פנטהאוז 6 חדרים מהמם ללא תיווך! 📍 רמת הגולן 29, קריית שרת – חולון ✨ מתפרש על שטח ענק של שתי דירות | 185 מ"ר בנוי + 30 מ"ר מרפסת מקורה | 215 מ"ר בטאבו ✨ קומה 5 מתוך 6 | פינוי: 08/2026 🌞 חלל מרכזי ענק ומואר עם 2 ויטרינות יציאה למרפסת 🌿 מרפסת מקורה עם צלונים חשמליים, נק’ מים, גז וחשמל 🍽️ מטבח ענק ויוקרתי עם אי מפנק 🛏️ סוויטת הורים גדולה עם חדר ארונות וחדר רחצה פרטי 🚿 2 חדרי רחצה | 🚽 3 שירותים ❄️ 2 מערכות מיזוג: מיני מרכזי בחלל הראשי + מולטי אינוורטר עם מזגן נפרד לכל חדר 🛡️ 2 ממ"דים 🚗 חניה פרטית בטאבו 🧠 תכנון חכם: מפסקים מחליפים, נק' רשת ותקשורת בכל חדר, רשתות בכל הבית (כולל רשתות כנף בממ"דים) ותריסים חשמליים 🌬️ 3 כיווני אוויר – דרום, מערב, צפון 🔆 דוד שמש 🏙️ דירה חדשה בת 5 שנים 📌 מיקום שקט ומעולה: קרוב לגנים, בתי ספר, מתחמי מסחר תעסוקה ובילוי, פארק פרס, עזריאלי, תחבורה ציבורית והקו הירוק. **מחיר גמיש לרציניים**
למידע נוסף על הנכס
נכס דומה
מחשבון משכנתא
פתח את המחשבון
מחיר הדירה
הון עצמי
%
תקופה בשנים
משכנתא
₪החזר חודשי מייצג
₪תאריך פרסום: 15/08/2025 (עדכון: 12/10/2025)
מידע נוסף אודות מיני פנטהאוז ברמת הגולן 29 חולון
מיני פנטהאוז למכירה 6 חדרים ברמת הגולן 29 חולון בעלת שטח 215, מרפסות שמש: 1, שירותים: 3, אמבטיות: 2, כיווני אוויר: צפון, דרום, מערב, חניות: 1, קומה: 5, שנת בניה: 2020, מעליות: 1, כיווני אוויר: צפון, דרום, מערב, תוספות:: מיזוג, יחידת הורים, ממ״ד, סורגים, חדר עגלות.
מיני פנטהאוז למכירה 6 חדרים ברמת הגולן 29 חולון בעלת שטח 215, מרפסות שמש: 1, שירותים: 3, אמבטיות: 2, כיווני אוויר: צפון, דרום, מערב, חניות: 1, קומה: 5, שנת בניה: 2020, מעליות: 1, כיווני אוויר: צפון, דרום, מערב, תוספות:: מיזוג, יחידת הורים, ממ״ד, סורגים, חדר עגלות.

